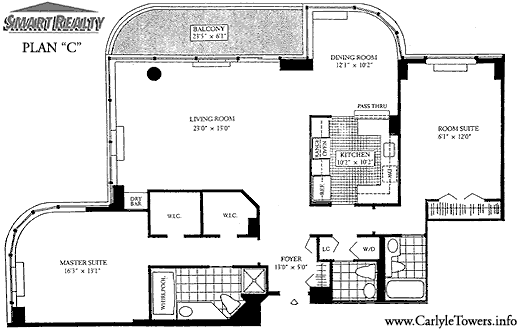
Carlyle Towers Sample Floor Plans